概述
随着国民经济和工业技术水平的快速发展,工业生产规模不断扩大,企业对起重机的自动化要求也不断增长。自动化起重机,减轻工作人员的负担,提***率,减少维护时间,给企业带来显著的经济效益。
洛阳亿万自动化科技有限公司,利用先进成熟技术,开发出了一种软件控制防摇并配合程序编程定位,替代了传统的防摇卡防摇和机械式防摇,通过变频器和PLC等实现了整车的防摇定位,提高了生产效率,降低了事故的发生,自控成本也下降了20%,也提高了定位和防摇的效果,实现了控制方式的自动化。
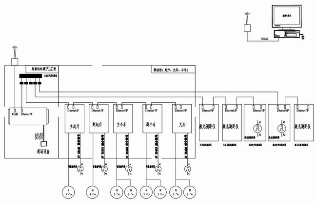
1、设备主要构成:主副起升机构、大车运行机构、主副小车运行机构、电气控制柜、传感器、远程操作及监控设备
2、自控系统图:

3、传感器:
①激光测距仪是利用激光对目标的距离进行准确测定的仪器。激光测距仪重量轻、体积小、操作简单速度快而准确,误差小。

②增量编码器通过内部两个光敏接受管转化其角度码盘的时序和相位关系,得到其角度码盘角度位移量增加(正方向)或减少(负方向),广泛用于起重机械行业。

③绝对值编码器由机械位置确定编码,无需记忆,无需找参考点,而且不用一直计数,当需要知道位置时就去读取它的位置。所以绝对值编码器的抗干扰特性、数据的可靠性都大大提高了。

④U型光电:光电传感器,在起重机自控中主要功能对移动小车与大车定位进行逻辑校位
⑤机械限位:主要做为起重机机械极限位使用
4自控系统原理:
上位机或手动操作机构将指令通过有线或无线发送给PLC,PLC根据指令控制各机构进行运行,通过传感器测量反馈到PLC,程序通过与指令来判断机构运行的动作。
本文是【http://www.ew10000.com 洛阳亿万自动化科技有限公司】原创,转载时请务必以链接形式注明作者和出处
地 址:http://www.ew10000.com/home-productinfo-id-50.html